Massanassa Town Hall
Eva María Alvarez Isidro
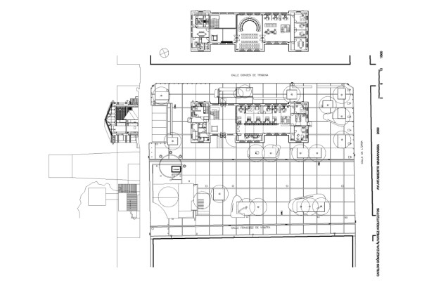
The refurbishment of Massanassa Town Hall reorganises an existing school building and strengthens its relationship with the square. Built in the 1930s and transformed over time, the building had lost clarity and connection to public space, the old school play yard with 80 years old pine trees. The project focuses on recovering this link and redefining access and use.
The main operation is the reactivation of the ground floor as a continuous space between interior and exterior. Access is reorganised to establish a direct and legible relationship with the square and the street that surround the old school. The building opens towards the public space, extending civic activity and allowing a gradual transition between outside and inside. The continuity of pavements and the alignment of entrances reinforce this condition.
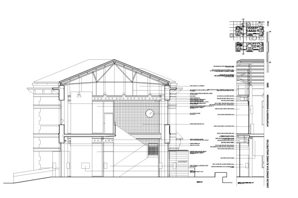
The internal organisation is clarified through a simple system that orders circulation, services and working spaces. The section connects levels and ensures visual continuity, allowing light to reach the interior and improving orientation within the building.
Special attention is given to working conditions. All workspaces are positioned in relation to natural light and vegetation, improving comfort and daily experience. Visual contact with the exterior is ensured, avoiding isolated spaces. The building supports both administrative work and public use with clear layouts.
All furniture was specifically designed for the project, ensuring coherence between space and use. This includes the 863 chair, conceived as part of the architectural system.
The intervention restores the civic role of the town hall by reinforcing its presence in the square, improving accessibility and establishing continuity between public and institutional space.
Planning partners: Carlos J. Gómez Alfonso
Client: Massanassa Town Hall
Categories: Service and Administration
Project Gallery

01 another ajuntament.jpg

formato premio ajuntament_Página_2.jpg

formato premio ajuntament_Página_3.jpg

formato premio ajuntament_Página_4.jpg

formato premio ajuntament_Página_5.jpg
Eva María Alvarez Isidro ES
https://gomezalvarezarquitectes.wordpress.com/
C/ Inmaculada 6 | 46183 L'Eliana